GOLDBECK GmbH
Angebot 16


Basis Infos
Das geplante Wohnbauprojekt wird in einer Holz-Hybridbauweise mit Schottenbau realisiert. Tragende Quer- und Wohnungstrennwände bestehen aus Stahlbetonfertigteilen, während die Geschossdecken aus Betonfertigteil-Hohlkammerdecken ausgeführt sind, die für Stabilität und eine hohe Tragfähigkeit sorgen. Tragende Wandplatten sowie Podeste und Treppenläufe sind ebenfalls in Stahlbetonfertigteilbauweise gefertigt. Die Badezimmer werden als Fertigbadzellen installiert, was den Bauprozess durch hohe Vorfertigung effizient gestaltet. Die Fassade ist eine Kombination aus Putz auf einem Wärmedämmverbundsystem (WDVS) und Teilbereichen mit Holzverkleidung, die für ein modernes und natürliches Erscheinungsbild sorgt. Die Installation einer Photovoltaikanlage (PV-Anlage) ist möglich, um den Energiebedarf nachhaltig zu decken. Zusätzlich kann das Dach als Gründach ausgebildet werden, um das Mikroklima zu verbessern und Regenwasser ökologisch zu bewirtschaften. Das Energiekonzept sieht eine Luft-Wasser-Wärmepumpe als Grundlastabdeckung vor, während ein Heizstab bei Spitzenlasten unterstützt. Die Warmwasserbereitung erfolgt dezentral über Wohnungsstationen, was eine individuelle und effiziente Warmwasserversorgung ermöglicht. Das Gebäude erfüllt die Anforderungen des GEG, und der Energiestandard EH 40 ist optional erreichbar. Das Global Warming Potential (GWP100) beträgt 23,7 kg CO₂-Äquivalent pro Quadratmeter und Jahr.
ANBIETER

Anbieter
"GOLDBECK Nordost GmbH, Leipzig mit Goldbeck Nord GmbH, Bielefeld, GOLDBECK Ost GmbH, Treuen (Vogtland), GOLDBECK Süd GmbH, Neuried, GOLDBECK Südwest GmbH, Hirschberg an der Bergstraße und GOLDBECK West GmbH, Monheim am Rhein"

Adresse
Heidestraße 8,
10557 Berlin
Deutschland

GDW@goldbeck.de

Website
www.goldbeck.de
ARCHITEKT

Architekt/Planer




Eckdaten

Bauweise
Elementiert

Hauptbaustoff
Beton

Serialität/
Standardisierung
Systementwurf auf Grundraster 1,...

Fassade
Putz WDVS Teils Holz

Photovoltaik
Möglich

Gründach
Möglich

Energiestandard
GEGEH40 Möglich

GWP100
23.7 kg/m2a

Konstruktion, Hauptmaterial,
Modularität
Schottenbau mit tragenden Quer- ...

Vorfertigung
Holzständerwände in Fassade

Heizen/Energie
Heizen/Energie: Luftwasser-Wärme...
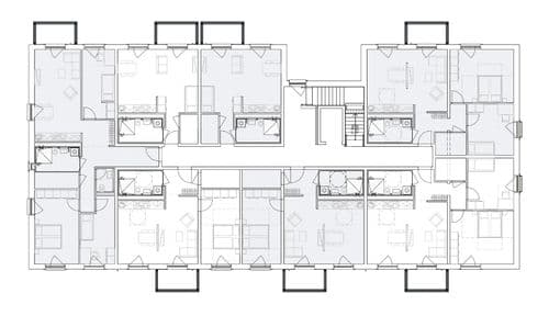
Erd- & Regelgeschoss



Isometrie

Gebäudekennwerte
Bebaute Fläche BF
609 m²
Brutto Grundfläche BGF oi
2528 m²
Brutto-Rauminhalt oi
7401 m²
Hüllenfläche HF oi
1965 m²
HF oi horizontal
609 m²
HF oi vertikal
1356 m²
Nutzungsfläche NUF oi
1895 m²
Mieterabstellräume
65 m²
Sonstiges
42 m²
Balkone, Terrassen, Außenflächen
110 m²
Technikfläche TF
29 m²
Verkehrsfläche VF oi
216 m²
Wohnfläche WF
1788 m²
Typ 1 - 1 Zimmer Wohnung WF
Typ 1 - Wohnung 1:
45 m²
Typ 1 - Wohnung 2:
45 m²
Typ 1 - Wohnung 3:
45 m²
Typ 1 - Wohnung 4:
45 m²
Typ 2 - 2 Zimmer Wohnung WF
Typ 2 - Wohnung 1:
66 m²
Typ 2 - Wohnung 2:
66 m²
Typ 2 - Wohnung 3:
66 m²
Typ 2 - Wohnung 4:
66 m²
Typ 2 - Wohnung 5:
66 m²
Typ 2 - Wohnung 6:
66 m²
Typ 2 - Wohnung 7:
66 m²
Typ 2 - Wohnung 8:
66 m²
Typ 3 - 3 Zimmer Wohnung WF
Typ 3 - Wohnung 1:
83 m²
Typ 3 - Wohnung 2:
83 m²
Typ 3 - Wohnung 3:
86 m²
Typ 3 - Wohnung 4:
83 m²
Typ 3 - Wohnung 5:
83 m²
Typ 3 - Wohnung 6:
87 m²
Typ 3 - Wohnung 7:
83 m²
Typ 3 - Wohnung 8:
83 m²
Typ 4 - 4 Zimmer Wohnung WF
Typ 4 - Wohnung 1:
103 m²
Typ 4 - Wohnung 2:
102 m²
Typ 4 - Wohnung 3:
103 m²
Typ 4 - Wohnung 4:
103 m²
Typ 4 - 5 Zimmer Wohnung WF
Typ 5 - 6 Zimmer Wohnung WF
Flächen- und Volumenindizes
Index 1 BF/BGF:
0.25
Index 2 NUF/BGF:
0.75
Index 2 BRI/BGF:
3.06
Index 2 HF/BRI:
0.27