Solid.Modulbau GmbH
Angebot 22


Basis Infos
Das geplante Wohnbauprojekt wird in einer Beton-Hybridbauweise ausgeführt, die eine effiziente und nachhaltige Lösung für modernen Wohnraum bietet. Die Konstruktion nutzt Stahlbetonmodule, die mit einem Wärmedämmverbundsystem (WDVS) versehen sind, und kombiniert sie mit Holzbalkendecken, die durch Zwischenraumdämmung für optimale Wärme- und Schalldämmung sorgen. Die Module werden vollständig vorgefertigt, was eine schnelle und präzise Montage vor Ort ermöglicht. Die Fassade des Gebäudes wird mit einer Holzschalung versehen, die dem Gebäude ein modernes und natürliches Erscheinungsbild verleiht. Optional kann eine Photovoltaikanlage (PV-Anlage) installiert werden, um den Energiebedarf des Gebäudes nachhaltig zu decken. Auf dem Dach sind sowohl Gründach- als auch Terrassenflächen möglich, was das Mikroklima verbessert und eine ökologisch wertvolle Regenwasserbewirtschaftung unterstützt. Das Heizsystem basiert auf Infrarot-Heizplatten, die eine effiziente und komfortable Beheizung der Räume gewährleisten, während die Warmwasserbereitung dezentral durch Durchlauferhitzer erfolgt. Der Bau entspricht den Anforderungen des GEG und erreicht ein Global Warming Potential (GWP100) von 23,6 kg CO₂-Äquivalent pro Quadratmeter und Jahr.
ANBIETER
Anbieter
Solid.Modulbau GmbH, Ahaus
Adresse
Einsteinstraße 12,
48683 Ahaus
Deutschland
stegink@solid-modulbau.de
Website
www.solid-modulbau.de
ARCHITEKT
Architekt/Planer
albusarchitecture,NEW Architekten GbR
Leverkusen




Eckdaten
Bauweise
Modular
Hauptbaustoff
Beton-Hybrid
Serialität/
Standardisierung
Ein Raster bis zu den Sondereinh...
Fassade
Holz Schalung
Photovoltaik
Möglich
Gründach
Möglich
Energiestandard
GEGEH40
GWP100
23.6 kg/m2a
Konstruktion, Hauptmaterial,
Modularität
Stahlbetonmodule mit WDVS; Decke...
Vorfertigung
Ganze Module vorgefertigt
Heizen/Energie
Heizen/Energie: Infrarot-Heizpla...
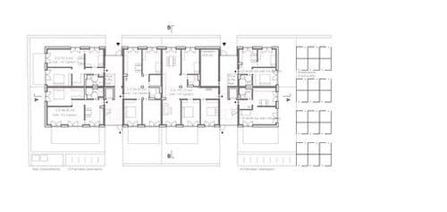
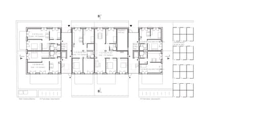
Erd- & Regelgeschoss



Isometrie

Gebäudekennwerte
Bebaute Fläche BF
555 m²
Brutto Grundfläche BGF oi
2306 m²
Brutto-Rauminhalt oi
6241 m²
Hüllenfläche HF oi
1886 m²
HF oi horizontal
555 m²
HF oi vertikal
1331 m²
Nutzungsfläche NUF oi
1543 m²
Mieterabstellräume
96 m²
Sonstiges
7 m²
Balkone, Terrassen, Außenflächen
144 m²
Technikfläche TF
19 m²
Verkehrsfläche VF oi
139 m²
Wohnfläche WF
1440 m²
Typ 1 - 1 Zimmer Wohnung WF
Typ 1 - Wohnung 1:
58 m²
Typ 1 - Wohnung 2:
41 m²
Typ 1 - Wohnung 3:
41 m²
Typ 1 - Wohnung 4:
41 m²
Typ 2 - 2 Zimmer Wohnung WF
Typ 2 - Wohnung 1:
84 m²
Typ 2 - Wohnung 2:
40 m²
Typ 2 - Wohnung 3:
61 m²
Typ 2 - Wohnung 4:
61 m²
Typ 2 - Wohnung 5:
61 m²
Typ 2 - Wohnung 6:
61 m²
Typ 2 - Wohnung 7:
61 m²
Typ 2 - Wohnung 8:
61 m²
Typ 3 - 3 Zimmer Wohnung WF
Typ 3 - Wohnung 1:
71 m²
Typ 3 - Wohnung 2:
81 m²
Typ 3 - Wohnung 3:
81 m²
Typ 3 - Wohnung 4:
81 m²
Typ 4 - 4 Zimmer Wohnung WF
Typ 4 - Wohnung 1:
95 m²
Typ 4 - Wohnung 2:
81 m²
Typ 4 - Wohnung 3:
81 m²
Typ 4 - Wohnung 4:
81 m²
Typ 4 - 5 Zimmer Wohnung WF
Typ 4 - Wohnung 1:
117 m²
Typ 5 - 6 Zimmer Wohnung WF
Typ 5 - Wohnung 1:
119 m²
Typ 5 - Wohnung 2:
119 m²
Typ 5 - Wohnung 3:
119 m²
Flächen- und Volumenindizes
Index 1 BF/BGF:
0.26
Index 2 NUF/BGF:
0.68
Index 2 BRI/BGF:
2.92
Index 2 HF/BRI:
0.3






