AH Aktiv-Haus GmbH
Angebot 27


Basis Infos
ANBIETER

Anbieter
AH Aktiv-Haus GmbH, Stuttgart mit Wolff & Müller Hoch- und Industriebau GmbH & Co. KG, Stuttgart

Adresse
Albstraße 14,
70597 Stuttgart
Deutschland

steffen.rapp@ah-aktivhaus.com

Website
www.ah-aktivhaus.com
ARCHITEKT

Architekt/Planer




Eckdaten

Bauweise
Modular

Hauptbaustoff
Holz

Serialität/
Standardisierung
Gebäude unterliegt einem Raster,...

Fassade
Holz Lattung

Photovoltaik
Möglich

Gründach
Extensiv

Energiestandard
EH40

GWP100
26.27 kg/m2a

Konstruktion, Hauptmaterial,
Modularität
Module in Holzständer-Bauweise; ...

Vorfertigung
Hoher Vorfertigungsgrad von 95%;...

Heizen/Energie
Heizen/Energie: Luftwasser-Wärme...
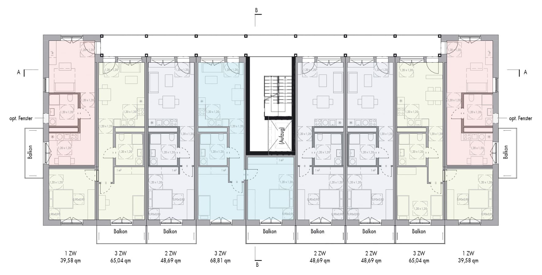
Erd- & Regelgeschoss



Isometrie

Gebäudekennwerte
Bebaute Fläche BF
545 m²
Brutto Grundfläche BGF oi
2466 m²
Brutto-Rauminhalt oi
6743 m²
Hüllenfläche HF oi
1990 m²
HF oi horizontal
545 m²
HF oi vertikal
1445 m²
Nutzungsfläche NUF oi
1730 m²
Mieterabstellräume
117 m²
Sonstiges
65 m²
Balkone, Terrassen, Außenflächen
150 m²
Technikfläche TF
52 m²
Verkehrsfläche VF oi
292 m²
Wohnfläche WF
1548 m²
Typ 1 - 1 Zimmer Wohnung WF
Typ 1 - Wohnung 1:
44 m²
Typ 1 - Wohnung 2:
44 m²
Typ 1 - Wohnung 3:
44 m²
Typ 1 - Wohnung 4:
44 m²
Typ 2 - 2 Zimmer Wohnung WF
Typ 2 - Wohnung 1:
54 m²
Typ 2 - Wohnung 2:
54 m²
Typ 2 - Wohnung 3:
54 m²
Typ 2 - Wohnung 4:
54 m²
Typ 2 - Wohnung 5:
54 m²
Typ 2 - Wohnung 6:
54 m²
Typ 2 - Wohnung 7:
54 m²
Typ 2 - Wohnung 8:
54 m²
Typ 3 - 3 Zimmer Wohnung WF
Typ 3 - Wohnung 1:
70 m²
Typ 3 - Wohnung 2:
70 m²
Typ 3 - Wohnung 3:
74 m²
Typ 3 - Wohnung 4:
70 m²
Typ 3 - Wohnung 5:
74 m²
Typ 3 - Wohnung 6:
70 m²
Typ 3 - Wohnung 7:
70 m²
Typ 3 - Wohnung 8:
74 m²
Typ 3 - Wohnung 9:
71 m²
Typ 4 - 4 Zimmer Wohnung WF
Typ 4 - Wohnung 1:
94 m²
Typ 4 - Wohnung 2:
94 m²
Typ 4 - 5 Zimmer Wohnung WF
Typ 4 - Wohnung 1:
110 m²
Typ 5 - 6 Zimmer Wohnung WF
Flächen- und Volumenindizes
Index 1 BF/BGF:
0.25
Index 2 NUF/BGF:
0.75
Index 2 BRI/BGF:
3.11
Index 2 HF/BRI:
0.3